top of page

.jpg)
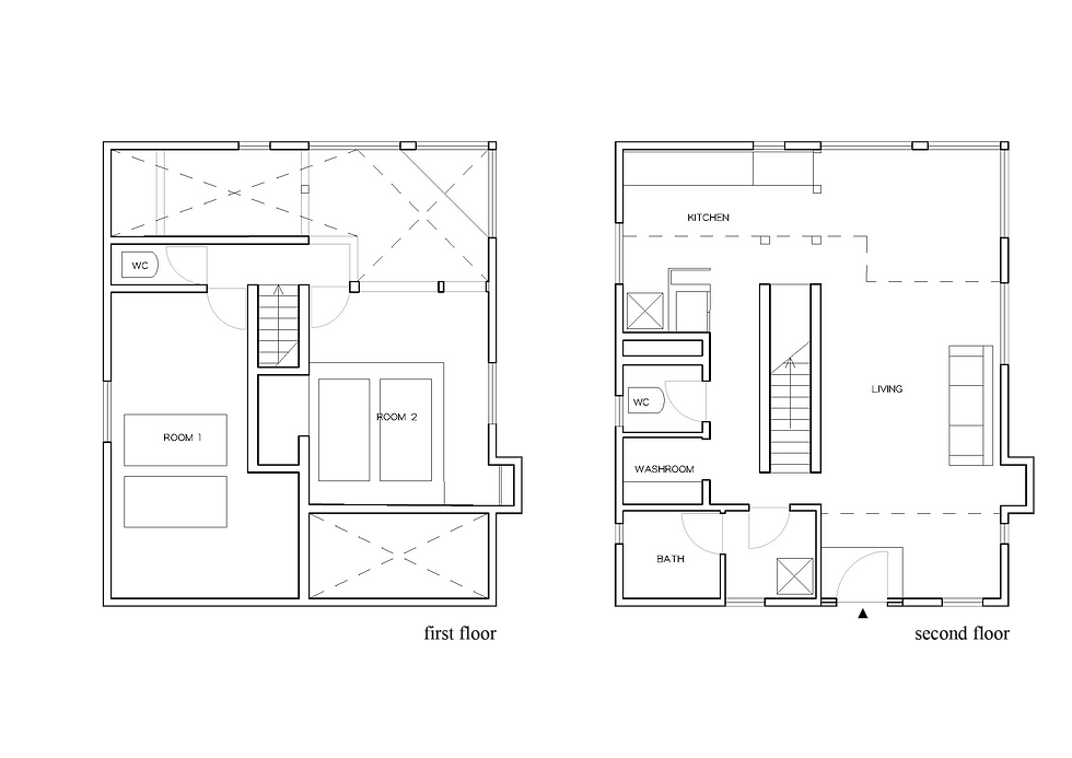
The two-story residence has been revitalized through a meticulous cut-and-sew approach, incorporating a carefully curated selection of Mediterranean colors and materials throughout the interior. This restoration bridges Japanese coastal living with Italian rural hospitality traditions, creating a unique cross-cultural experience.
.jpg)

architecture
architecture
Ichinomiya is an area of Japan located east of Tokyo, renowned for its surfing culture and stunning coastline. In recent years, this coastal region has witnessed a growing trend of hospitality renovations. This particular project has restored an entire house, introducing the Italian concept of agriturismo to the area.
B&B, apartment renovation
winu
Ichonomiya, Chiba, Japan
2024

useful
mistakes



bottom of page













